Hydraulic Floor Crane

Hydraulic Floor Crane
Hydraulic Floor Crane

Features

  • Outer Boom
  • Inner Telescopic Boom
  • 360° Swivel Hook
  • Piston Rod
  • Vertical Column Assembly
  • Hydraulic Cylinder
  • Releas Valve
  • Pump Handle
  • Pump Housing / oil Tank
  • Chassis
  • Wheel Lock
  • Swivel Castor/steering Assembly
  • Counter weight Tank

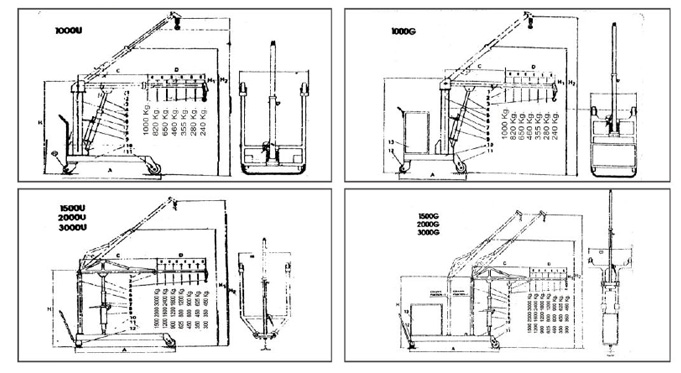
Model Capacity A
(mm)
B
(mm)
C
(mm)
D
(mm)
E
(mm)
H
(mm)
H1
(mm)
H2
(mm)
1000U 1000 1750 1130 1100 900 150 1850 2450 3000
1000G 1000 1600 900 1100 900 150 1850 2450 3000
1500U 1500 2200 1300 1650 1050 175 1980 3300 3900
1500G 1500 2500 1200 1650 1050 175 1980 3300 3900
2000U 2000 2250 1300 1650 1050 175 1980 3300 3900
2000G 2000 2500 1200 1650 1050 175 1980 3300 3900
3000U 3000 2300 1600 1650 1050 175 2000 3300 3900
3000G 3000 2500 1600 1650 1050 175 2000 3300 3900

98111-82148